• WORK PORTFOLIO
  • SCHOOL PORTFOLIO
  • Photography
  • About
Menu

Sofia Burlo

  • WORK PORTFOLIO
  • SCHOOL PORTFOLIO
  • Photography
  • About

LOUNGE at EWR AIRPORT

Ethereal Boundaries work like filters, gradually unveiling the spaces in a slow and controlled transition. Vertical strings run through the lounge as an undulating screen that creates intimacy without closing the space. Multiple strings create the impression of haze; from a distance the user perceives a solid surface that dissipates as he gets closer, allowing him to see through the strings and into the contiguous space. The lounge is located in the center of the space, pushing the rest of the programs (restaurant, bar and V.I.P.) to the perimeters. Cocoon like chairs in the lounge allow the individual use of the space in a collective area.

Sofia_Burlo_003.jpg
Sofia_Burlo_002.jpg
Sofia_Burlo_001.jpg
Sofia_Burlo_004.jpg
Sofia_Burlo_005.jpg

INSTALLATION at THE WHITE HOUSE

Part of a group of 16 students from Parsons selected to design an installation in the East Room of the White House -Washington DC- for an educational event. 600 discarded books were transformed into objects of different scales: napking rings, tabletop centrepieces, a podium and a stage backdrop.

GOTHAM2C.jpg
IMG_2581.JPG
IMG_5227.JPG
WH installation.jpg

MUSEUM AND ARCHIVE SPACE

Exploring the concepts of Collecting and Dispersing, all of the 4 levels of this exhibition and storage space are connected by a polygonal system that moves through the floors like growing cells. It serves as a display background for photographs and artifacts, as well as  providing seating and table space for reading rooms. An additional orthogonal storage system composed of metallic scaffoldings, works as a structural support and provides rational organization to the space.

Sofia_1st floor.jpg
Public Archive PLANS.jpg
Public Archive section.jpg
Sofia_ground floor.jpg

HOUSE FOR AN ARTIST

The interior of this project was inspired by the organic shapes of Sachiko Kodama’s liquid sculptures made with ferrofluids. DYNAMISM, CONTINUITY and FLEXIBILITY are the concepts that define the interaction between the spaces. The vertical component dividing public and private spaces is the dynamic piece of my project. This internal wall acts like a continuos and flexible surface that mimics the curves created by ferrofluids. Materialized by a perforated steel sheet with small circular perforations,  this surface blocks the light or the views from one side to the other, or reveals them. 

house for an artist - conceptual.jpg
01_House for an Artist_FloorPlans.jpg
02_House for an Artist_Sections.jpg
house for an artist - photo and section.jpg

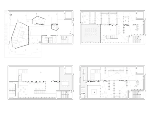
RETAIL SPACE

Iris Van Herpen is best known for the incorporation of 3d printing in fashion design. For the design of her store, I captured the COMPLEX MATERIAL DIVERSITY of the garments and transformed them into functional architectural pieces:

= contiguous layers of acetate generate an undulating shoe display,

= reflective triangular pieces compose a sculptural background,

= an intricate serpentine curved edge object mimics a section of a 3d printed dressand creates a stage for haute-couture dresses.

The interior surfaces reveal the diferent materiality of the diversity of Iris Van Harpen’s work.

iris abstract.jpg
1_Sofia Burlo_FloorPlan.jpg
2_Sofia Burlo_FloorPlan2.jpg
3_Sofia Burlo_SectionA.jpg

MATERIAL STUDY

ceiling sticks.jpg
prev / next
Back to SCHOOL PORTFOLIO
Sofia_Burlo_003.jpg
5
LOUNGE at EWR AIRPORT
GOTHAM2C.jpg
4
INSTALLATION at THE WHITE HOUSE
Sofia_1st floor.jpg
4
MUSEUM AND ARCHIVE SPACE
4
HOUSE FOR AN ARTIST
4
RETAIL SPACE
1
MATERIAL STUDY

Powered by Squarespace